The Platte | Residence 2122 | New Homes for Sale in Aurora, CO

Single Family Home

Est. Loading... /mo

$594,990

  • Square Footage

    2,122 sq ft

  • Bedrooms

    4 beds

  • Bathrooms

    3 baths

  • Number of Floors

    2 floors

  • Parking Bays

    2 bays

The Aurora Highlands
3422 N Highlands Creek Parkway,
Aurora, CO 80019

phone icon 303-558-7373
watch icon Sales Office Hours

Sales Office Hours

Monday 10:00 AM - 06:00 PM

Tuesday 10:00 AM - 06:00 PM

Wednesday 12:00 PM - 06:00 PM

Thursday 10:00 AM - 06:00 PM

Friday 10:00 AM - 06:00 PM

Saturday 10:00 AM - 06:00 PM

Sunday 11:00 AM - 06:00 PM

Overview

If you’re looking for the perfect blend of space and style, the Platte plan delivers. The main floor features an open, welcoming layout with a bright great room, dining area, and a spacious kitchen complete with a center island and walk-in pantry—ideal for everyday living and entertaining alike. A convenient bedroom and full bath on this level add flexibility for guests or a home office. Upstairs, the peaceful primary suite offers a roomy walk-in closet and private bath, creating a relaxing retreat. Two additional bedrooms and a shared bath complete the upper level. An unfinished lower level provides plenty of opportunity to personalize the space to fit your needs.

 

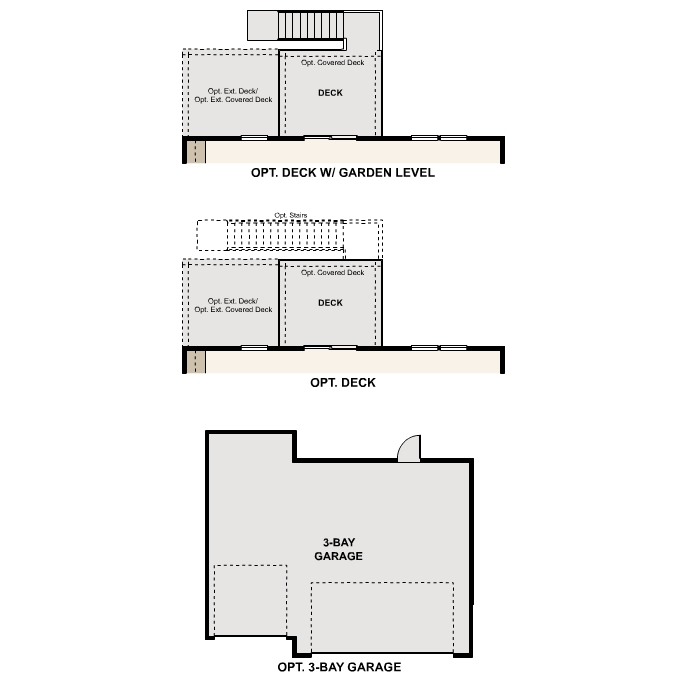
Options Include:

Covered patio or extended covered patio

Walkout at lower level with patio

Garden-level deck

3-bay garage

 

Interactive Floor Plan

Enjoy a closer look at what this plan has to offer!

Available Homes

Buy online today!

Lock in your dream home through our convenient and completely online Buy Now process.

  • Unfinished Basement
    3-Bay Garage

    3303 N. Irvington Street | Lot 2103

    Est. Completion:
    Jun. Move In.
    The Platte | Residence 2122

    Single Family Home

    Est. Loading... /mo
    $649,990
    • Square Footage 2,122 sq-ft
    • Bedrooms 4 br
    • Bathrooms 3 ba
    • Parking Bays 2 bays

Explore homesites at this community!

Get a feel for the neighborhood and find the right homesite for you.

Community Information

The Aurora Highlands

The Aurora Highlands offers a variety of ranch and two-story new construction homes in Aurora, Colorado, ranging from three to four bedrooms and up to 2,433 square feet in size, with optional features like walkout basements on select lots, rear covered patios, and three-bay garages, there are plenty of choices to fit your needs. Residents of the planned community will enjoy a range of resort-style amenities, recreational facilities, and green spaces. Located near E470 and Aurora Highlands Parkway, the community offers easy access to transportation routes and business hubs with a five-minute drive to Denver International Airport and 20 minutes to Downtown Denver and the Denver Tech Center. The Aurora Highlands is a well-designed and convenient community for those looking for new construction homes in Aurora, CO.

 

Welcome to The Aurora Highlands. 

Community Amenities

Winged Melody Park (Now Open) features an event stage for live music, a delightful carousel, a colorful playground, and an enchanting garden.

 

Beach Club (Coming Memorial Day Weekend 2025) offers indoor and outdoor pools, with thrilling amenities and picturesque community views.

 

Future Ice & Recreation Center (In Planning and Approval Phase) will include a hockey rink, basketball court, climbing wall, and other amenities.

Schools

Residents of The Aurora Highlands will be a part of the high-achieving Aurora Public School District.

 

To learn about the current school assignments below and more, contact the Aurora Public  School District at 303.344.8060 or https://www.aurorak12.org/. 

 

 

  • Aurora Highlands | Pre-k - 8 | 24405 E 42nd Ave, Aurora, CO 80019 |303.326.3125
  • PEAK Preparatory | 9 -12 | 24500 E. 6th Ave. Aurora, CO 80018 | 303.340.0121

Shopping and Dining

  • Walmart Supercenter
    Aurora, CO 80011
    Department Store & Grocery
  • King Soopers
    Denver, CO 80249
    Grocery Store
  • The Home Depot
    Aurora, CO 80011
    Home Improvement Store
  • Costco Wholesale
    Denver, CO 80239
    Warehouse Store
  • Chick-Fil-A
    Aurora, CO 80011
    Fast Food Restaurant
  • Green Valley Smokehouse and Oyster Bar
    Denver, CO 80249
    Restaurant
  • Mondo's Pizza
    Aurora, CO 80011
    Pizza Restaurant
  • Five Guys
    Aurora, CO 80011
    Fast Food Restaurant

Homeowner reviews

See for yourself what our Century Communities homeowners are saying about their dream homes!

Request Information

Do You Currently Rent or Own
I'm a realtor required
Schedule a Tour

Century Communities' privacy policy can be found at www.centurycommunities.com/privacy-policy.

 

SMS Consent: By consenting to recieve SMS messages, your agree that we can contact you via text using the phone number provided.  Text messaging will be used to send information specific to your inquiry or offers related to your inquiry.  Message frequency will vary - with a maximum of 10 text messages sent in a 30 day window. 

 

Standard text message rates apply. Users can opt out of text messages at any time by texting STOP.

 

©2025 Century Communities, Inc.

 

This site is protected by reCAPTCHA.